
Projet Blagnac
Rénovation complète d'un appartement de 50m²

Client : Particulier
Lieu : Blagnac (31)
Formule : Origine
Date : Janvier 2025
Pour son premier achat immobilier, ma cliente souhaitait transformer cet appartement en rez-de-chaussée en un espace fonctionnel, optimisé et parfaitement adapté à ses usages du quotidien.
L’objectif : investir pleinement les lieux et créer un intérieur qui lui ressemble.
Elle désirait une ambiance chaleureuse et enveloppante, faisant subtilement écho à la ville rose et à l’univers de l’aéronautique, sans tomber dans le décoratif excessif. Un clin d’œil délicat, intégré à l’architecture intérieure.



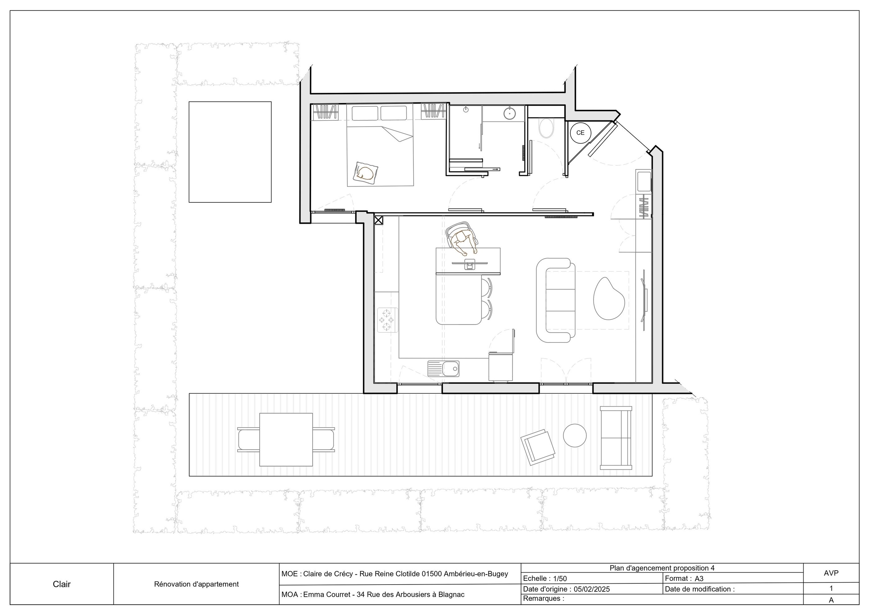
Plan du projet







Avant

L’aménagement a été conçu pour accueillir :
une chambre confortable, pensée pour maximiser les rangements,
une cuisine multifonction, véritable cœur du logement, intégrant un vaste plan de travail, un espace repas, un coin télétravail ainsi qu’une petite buanderie discrète avec coin café.
Un véritable défi d’optimisation, relevé avec une priorité claire : libérer l’espace salon et détente, pour offrir une sensation de volume, de respiration et de confort. Les matériaux et teintes ont été choisis avec soin pour créer une atmosphère douce et cohérente :
la terre cuite, utilisée notamment pour le claustra, apporte rythme et caractère,
le bois vient lier les espaces et renforcer la sensation de chaleur,
des teintes brique réveillent l’ensemble et rappellent subtilement l’identité toulousaine.
Un projet d’architecture d’intérieur où fonctionnalité, esthétique et usages se rencontrent pour accompagner un premier achat en toute sérénité.

Clair
Atelier d'architecture d'intérieur durable
© 2024. Tous droits réservés
07 59 53 02 03 | contact@clair-atelier.fr

















