
Projet Pacé
Rénovation d'un séjour de 32m²

Client : Particulier
Lieu : Pacé (35)
Formule : Origine
Date : janvier 2026
Cet appartement, fraîchement acquis, s’apprête à accueillir les premiers souvenirs d’une vie à deux. Pour donner forme à ce nouveau chapitre, ils ont fait appel à l'atelier pour imaginer un cocon à leur image.
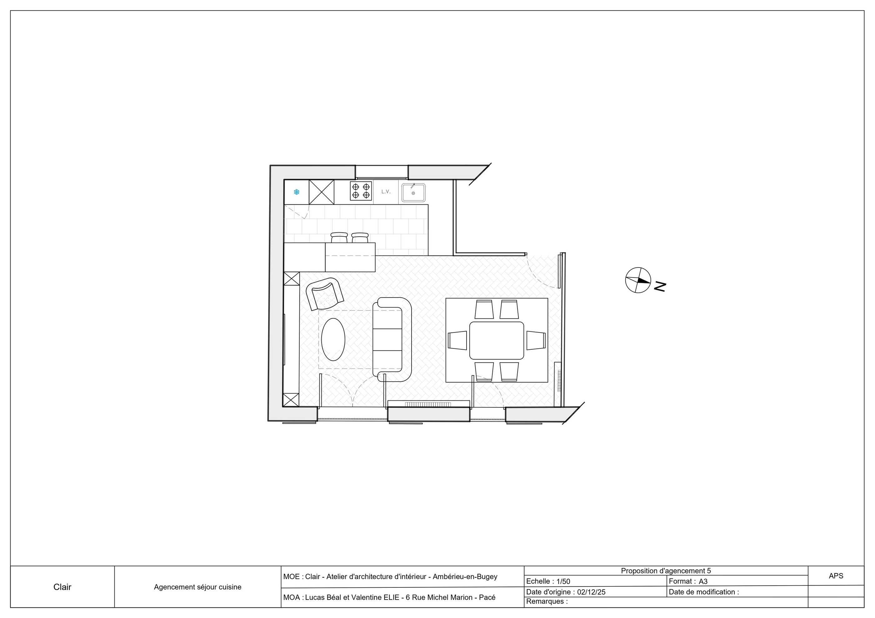
Dans cet espace de 32 m², chaque mètre carré a été pensé pour conjuguer fonctionnalité, esthétisme et durabilité.



Plan du projet







Avant

Le souhait des clients était de créer trois zones distinctes sans les cloisonner, afin de profiter pleinement de la luminosité de la pièce.
Le séjour accueille ainsi :
une cuisine avec îlot, orientée vers l’extérieur,
un espace repas permettant d’accueillir jusqu’à six personnes,
un salon doté de nombreux rangements optimisés.
L’ensemble a été pensé pour faire la part belle aux moments de vie et de convivialité.

Clair
Atelier d'architecture d'intérieur durable
© 2024. Tous droits réservés
07 59 53 02 03 | contact@clair-atelier.fr

















